EAP28 2018 Compeers & Michaud 3

Thomas Compeers & Yannick Michaud

Sequences and perspectives. ULiège  (Belgium) 

EAP28 2018 Thomas Compeers 0
EAP28 2018 Yannick Michaud 0

In front of this monumental building, rather than erasing the past, the project appropriates the building without corrupting it, transforms it to personalize it. This "machine building" by its functionalist logic, generates a potential for significant flexibility. The structure and the facade persist and help to develop a unique atmosphere.

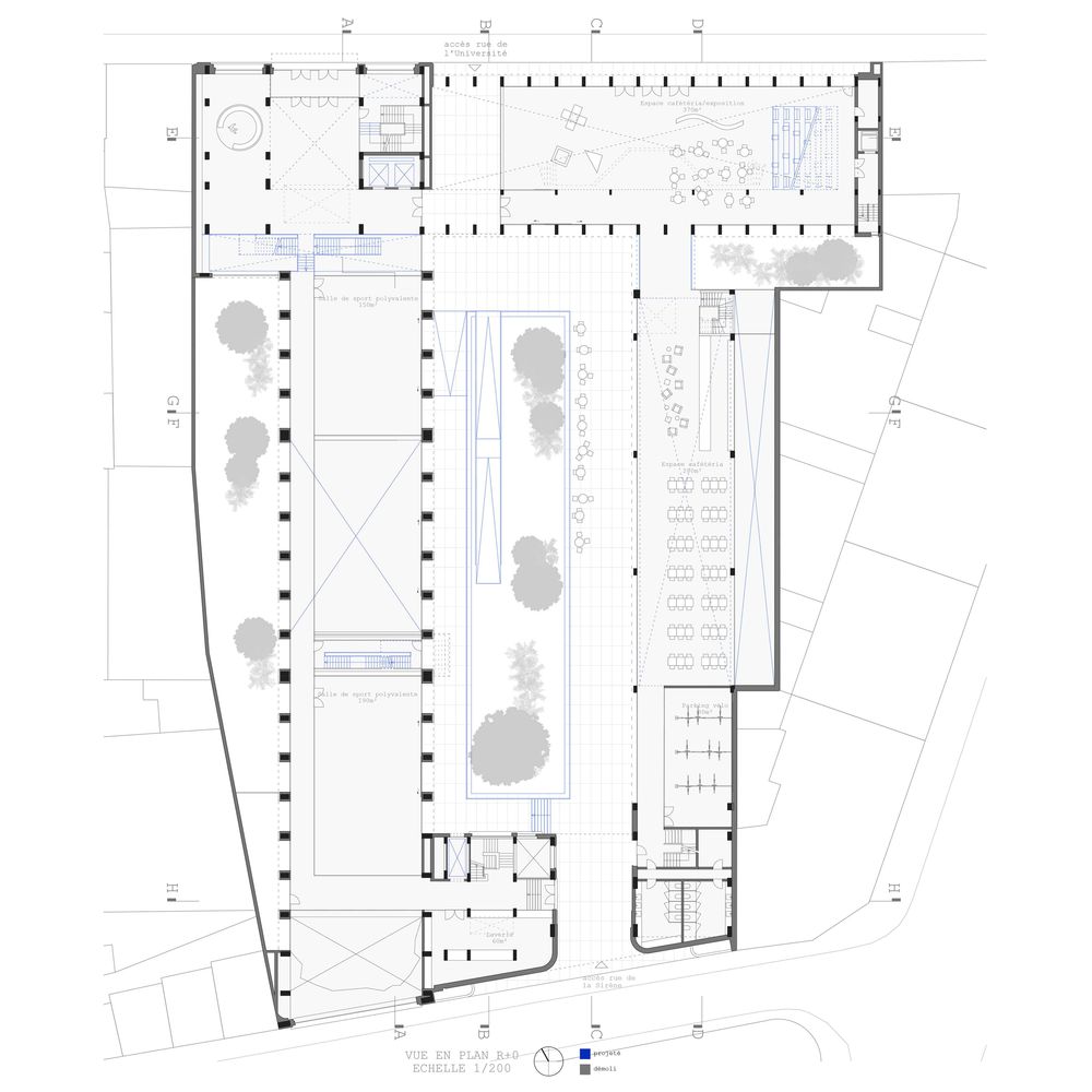
Close to the university facilities, the building is located in the center of Liège. The program is a university residence with 129 studios and apartments spread over four levels. The ground floor and the basement are completed by artistic, sports and cultural functions. We decided to take advantage of the initial situation by allowing the public to cross the parcel and by showing the activities taking place in the building. The main intervention consists of a series of new outdoor spaces who make the link between the basement and the ground floor. No volume appears in the courtyard and the visual perspective extends from one street to another and is simply disturbed by a filter of tree emerging from the yard. Each section of the building incorporates a different typology of housing, a way of living and occupying different. The dwelling divisions follow the structural framework and exploit the limits of the ceiling heights. The existing vertical circulations receive the community spaces placed at the meeting of each wing.

The goal of the project is to do as little as possible to give as much as possible, being able to obtain the best results with fewer means, the least regulation for more freedom.

EAP28 2018 Compeers & Michaud 8
EAP28 2018 Compeers & Michaud 7
EAP28 2018 Compeers & Michaud 6
EAP28 2018 Compeers & Michaud 5
EAP28 2018 Compeers & Michaud 4
EAP28 2018 Compeers & Michaud 3
EAP28 2018 Compeers & Michaud 2
EAP28 2018 Compeers & Michaud 1

SCHUNCK cannot guarantee the correctness of content and expression. The participants themselves are responsible for their entries. The copyright of the projects underlies to the authors, any reproduction or use of the shown material is strictly forbidden.